Ely Road, Denver
£650,000
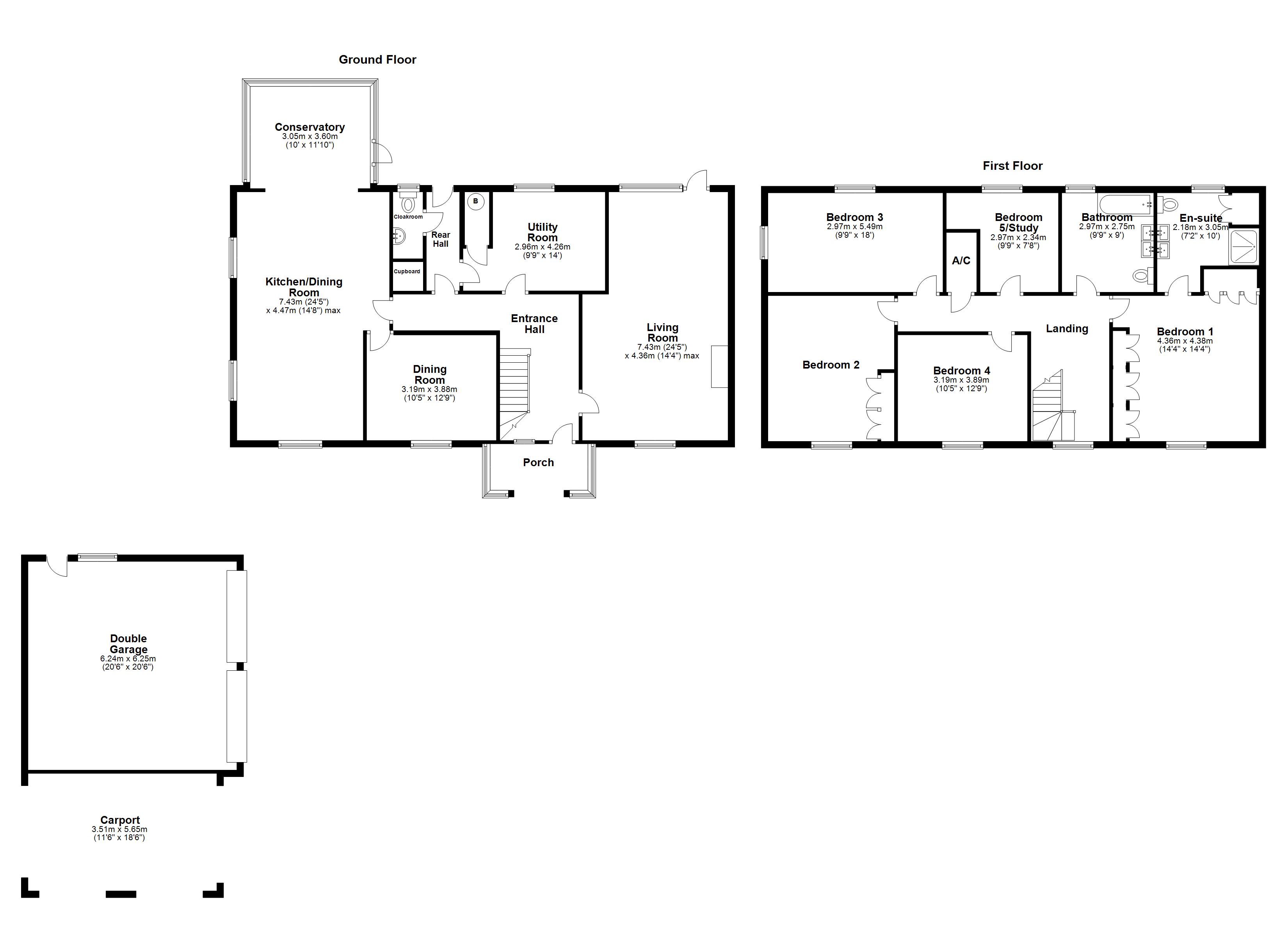
Key Features
- Sought After Village with Views Over Church
- 5 Bedrooms, En-Suite & Bathroom
- Double Garage & Extensive Driveway
- 2700 Square Feet House
- Generous Garden & Patio
- Open Plan Kitchen/Dining Room & Conservatory
- 24 Ft Living Room with Gas Fire
- Security Alarm
- Utility, Cloak/Boot Cupboard & Cloakroom
- Close to Downham Market Train Station
Description
A unique opportunity to purchase a superb executive 5 bedroom detached house situated in a lovely non estate position with views over the village church and a short walk from the village pub, primary school and shop, whilst only a short drive from Downham Market train station which has links to Cambridge, London & King's Lynn. The property has over 2700 square feet of accommodation with a lovely open plan kitchen/dining room leading into the conservatory. There are 2 generous reception rooms, an utility room, boot/cloak cupboard, ground floor cloakroom and a spacious utility room with lots of additional storage. The 5 bedrooms are all spacious, light and airy with a refitted master en-suite and family bathroom. Outside is an extensive circular driveway, carport, double garage, patio areas and a lovely garden with storage shed, greenhouse and vegetable garden.
Room Details
Floorplan
